
































We also speak English, you can contact us anytime!
Pretul nu include TVA (19%)
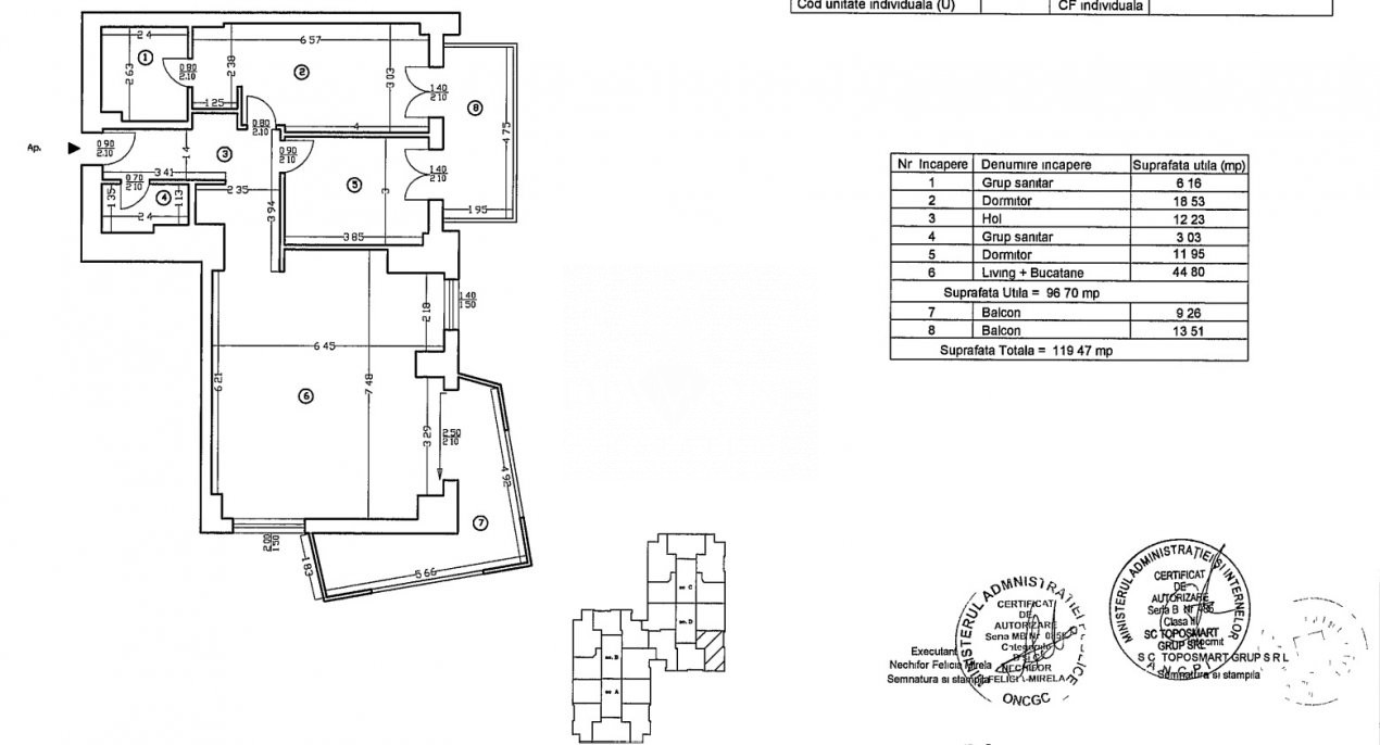
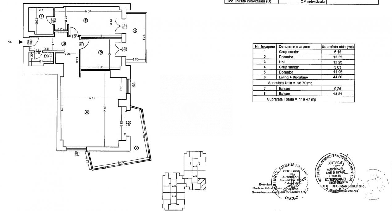
Vanzare apartament 3 camere situat intr-o zona excelenta, UpGround Residence, la doar 3 minute de mers pe jos pana la metrou Pipera.
APARTAMENTUL NECESITA RENOVARE!
Este structurat astfel: living + bucatarie, 2 dormitoare, 2 bai, 2 terase, orientat spre Sud-Est.
PARCARE subterana + boxa se pot achizitiona separat.
La mica distanta fata de urmatoarele locatii de interes: zona de business Pipera/ Dimitrie Pompeiu cu cele mai importante corporatii: Nestle, Airbus, Huawei, Fan Courier, Honeywell, Genpact Romania, Procter&Gamble, Sodexo Pass, Antena 1, Prima TV, Travco, NovoPark, Hermes Business Campus, Iride, si: Promenada Mall, Baneasa Shopping City, aeroportul Henri Coanda, Parcul Herastrau, etc.
In cadrul complexului regasiti, printre altele, si: Restaurante si cafenele: StarBucks, Gregory,s, GuriGuri (Korean), Ego Lounge, Restaurant Fayn, Restaurant L'autre Nori, sala de fitness, aerobic, piscina interioara si SPA: World Class; Supermarket: Mega-Image, Curatatorie/Croitorie Azur, Saloane: Geta Voinea, Banci: Banca Romaneasca, Bancpost, Marfin Bank; BRD, Farmacie: Dr. Max, Clinici: Medicover, Altele: Pepco.
Ideal pentru cei care cauta o locatie cu liniste, confort si acces facil la mijloace de transport in comun, restaurante, cafenele, scoli, parcuri, supermarketuri, Mall-uri, etc.
Pentru mai multe informatii, consiliere imobiliara profesionala si programare la vizionare, va rog sa apelati numarul afisat.
Oferim GRATUIT consultanta in vederea obtinerii unui credit si cele mai bune conditii de pe piata.