














































Vanzare Penthouse tip Duplex 5 camere, foarte spatios: 323mp, situat intr-o zona excelenta, UpGround Residence - Soseaua Fabrica de Glucoza, la doar 3 minute de mers pe jos pana la metrou Pipera, Bd. Dimitrie Pompeiu si Barbu Vacarescu.
APARTAMENTUL ESTE SEMIFINISAT. Partea buna este ca il puteti amenaja conform preferintelor dvs!
Fotografiile de prezentare sunt randari special realizate pentru aceasta proprietate.
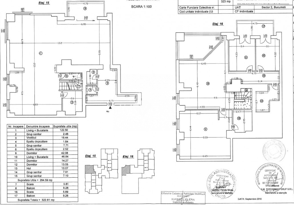
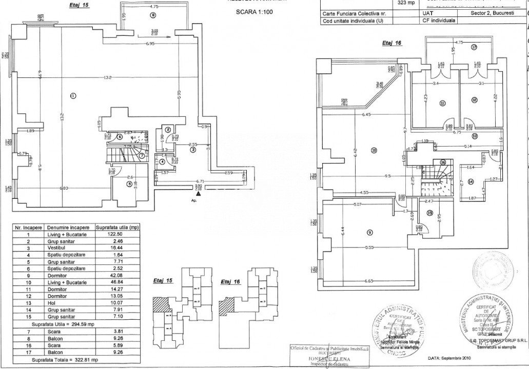
Structura si compartimentarea le puteti vedea in releveul din sectiunea fotografii:
- Living + bucatarie A 123mp
- Living + bucatarie B 47mp
- 3 dormitoare
- 4 bai
- Spatii depozitare
- 2 terase
- Orientat spre Vest & Nord, etaj 15+16!
PARCARE subterana + boxa se pot achizitiona separat.
Situat in UpGround Residence, la mica distanta fata de urmatoarele locatii de interes: zona de business Pipera/ Dimitrie Pompeiu cu cele mai importante corporatii: Nestle, Airbus, Huawei, Fan Courier, Honeywell, Genpact Romania, Procter&Gamble, Sodexo Pass, Antena 1, Prima TV, Travco, NovoPark, Hermes Business Campus, Iride, si: Promenada Mall, Baneasa Shopping City, aeroportul Henri Coanda, Parcul Herastrau, etc.
In cadrul complexului regasiti, printre altele, si: Restaurante si cafenele: StarBucks, Gregory s, GuriGuri (Korean), Ego Lounge, Restaurant Fayn, Restaurant L autre Nori, sala de fitness, aerobic, piscina interioara si SPA: World Class; Supermarket: Mega-Image, Curatatorie/Croitorie Azur, Saloane: Geta Voinea, Banci: Banca Romaneasca, Bancpost, Marfin Bank; BRD, Farmacie: Dr. Max, Clinici: Medicover, Altele: Pepco.
Ideal pentru cei care cauta o locatie cu liniste, confort si acces facil la mijloace de transport in comun, restaurante, cafenele, scoli, parcuri, supermarketuri, Mall-uri, etc.
Toate avantajele acestei proprietati nu pot fi explicate intr-un simplu anunt, asa ca te invitam sa ne suni sau sa ne lasi un mesaj si vom fi bucurosi sa iti oferim mai multe informatii.